物件詳細情報
| 交通 |
小田急江ノ島線 / 桜ヶ丘駅 徒歩4分 |
| その他交通 |
小田急江ノ島線 / 大和駅 徒歩28分 相鉄本線 / 大和駅 徒歩29分
|
| 所在地 |
神奈川県大和市福田1丁目 |
| 物件種目 |
貸マンション |
| 賃料 |
3.3万円 |
管理費等 |
10,000円 |
| 敷金 / 保証金 |
なし/なし |
礼金 |
なし |
| 敷引 |
- |
保証金償却 |
- |
| その他一時金 |
契約事務手数料:5,500円、 退去時ハウスクリーニング:38,500円、 退去時エアコン分解清掃:13,200円、 鍵交換代等:22,000円~ |
保険等 |
加入要 / 2年間 20,000円 |
| 維持費等 |
24H生活サポート:1,650円/月 |
| 建物名・部屋番号 |
ライオンズマンション桜ヶ丘駅前 |
| 設備 |
モニタ付オートロック 宅配BOX システムキッチン バイク置き場 室内洗濯機置場 シューズボックス オートロック モニタ付インターホン 電気コンロ エレベーター 洗面台 バス・トイレ同室 洗濯機置場 出窓 都市ガス エアコン バルコニー 駐輪場 光ファイバー CATV CS BS端子 トイレ |
| 備考 |
賃貸保証等:加入要 初回契約時:50%、月額:1.5% バルコニー:あり ・短期解約違約金有 1年未満の解約で総賃料の3.5ヶ月分 ・解約予告2 ヶ月前 ・短期解約違約金有 1年未満の解約で総賃料の3.5ヶ月分 ・解約予告2ヶ月前
|
| エネルギー消費性能 |
- |
断熱性能 |
- |
| 目安光熱費 |
- |
|
|
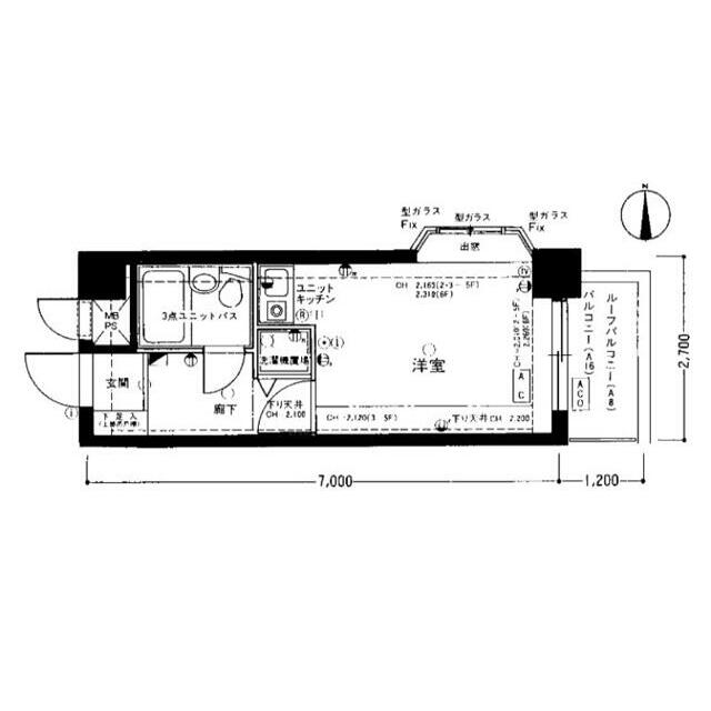
| 間取り |
1K(洋室6) |
主要採光面 |
東 |
| 専有面積 |
18.90㎡ |
階建/階 |
6階建/6階 |
| 築年月 |
1988年8月(築37年6ヶ月) |
建物構造 |
RC |
| 総戸数 |
- |
|
|
| 駐車場 |
なし |
バイク置き場 |
有 |
| 駐輪場 |
有 |
ペット |
- |
| 契約期間 |
2年 |
現況 |
空家 |
| 条件等 |
- |
入居可能時期 |
即時 |
| 更新料 |
新賃料 1ヶ月 |
|
|
| 物件番号 |
1188107414 |
|
|
| 情報公開日 |
2025/12/01 |
次回更新予定日 |
2026/01/29 |
※「-」と表示されている項目については、情報提供会社にご確認ください。
情報提供会社
クローバーライフ(株)
- 交通:
- 相鉄本線/三ツ境 徒歩2分
- 住所:
- 神奈川県横浜市瀬谷区三ツ境107-1 キャステル三境1F
- TEL:
- 045-364-2205
- FAX:
- 045-365-3639
- 所属団体など:
| (公社)全日本不動産協会会員 |
| (公社)首都圏不動産公正取引協議会加盟 |
- 取引態様:
- 仲介
- 免許番号:
- 神奈川県知事免許(13)第9442号
メールでお問い合わせ
